Cliquez sur les images pour les agrandir et les faire défiler (touches directionnelles).
Ecole Maternelle
& Crèche Louise Michel

St-Michel sur Orge (91)


MAITRISE D’OUVRAGE Ville de Saint Michel sur Orge
MAITRISE D’OEUVRE Catherine Fermand Architecte
IBAT Structures - FLUGECLIM Fluides
EPBV Economistes
PROGRAMME Construction d’une école maternelle et d’une crèche au coeur d’un quartier d’habitations
SURFACE 1200M² SHON
COUT 2.6 M€ H.T.
LIVRAISON 2009


Façades en damiers au coeur d’une cité de Logements

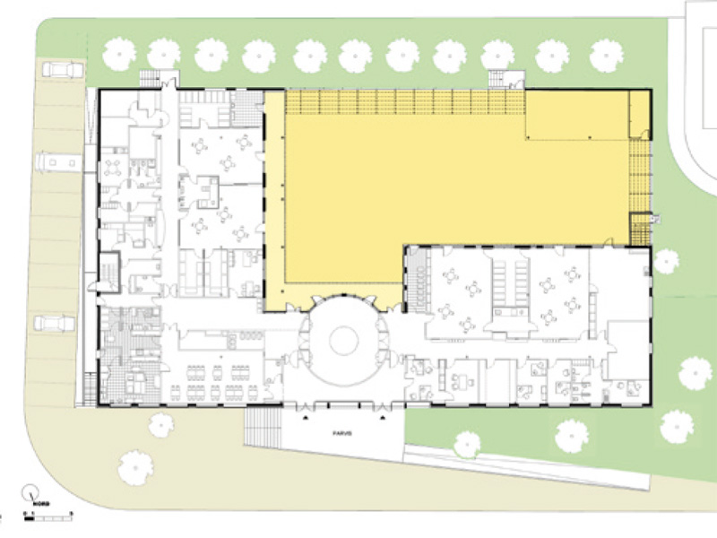
Cet équipement rassemble une école maternelle de 3 classes et une crèche de 30 berceaux dans un bâtiment construit en surélé- vation d'un parking existant, situé au cœur d'une cité des années 60. Figure imposée, le projet architectural porte une attention parti- culière au traitement du socle de l'édifice comme de ses toitures, cinquième façade végétalisée vue des habitations qui l'entourent. Deux grand corps de bâtiment sont implantés perpendiculaire- ment sur la dalle. Ils délimitent une grande cour orientée au Sud et à l’Ouest.


    




Les toitures se soulèvent pour éclairer les circulations

Le bâtiment se compose de 2 ailes épaisses, construites en ossature métallique légère et habillée de bardage coloré. Un travail sur les volumes et la pénétration de la lumière naturelle au cœur du bâti a permis l’élévation de sheds en toiture qui animent également les façades.

Au Sud à l’Ouest, des brises soleil en rondins de bois naturel suspendus proteègent du soleil les salles réservées aux enfants. Cette forme simple en L permet une distribution claire et directe des différentes unités qui composent le projet: l’école, d’une part, la crèche de l’autre; au centre, la salle d’évolution, la salle à manger et la cuisine sont implantées de manière stratégique.

Un soin particulier est porté à la conception du mobilier réservé aux enfants. L’aménagement des abords et la rampe d’accès à l’équipement
a été réalisé en collaboration avec les services de la Ville.